Stunning views of the sea and mountains - Nestled on the shore of the sea loch, Loch Long, An Dòbhran and Dornie Croft enjoys amazing views of the sea loch, Loch Long and the hills of Lochalsh.

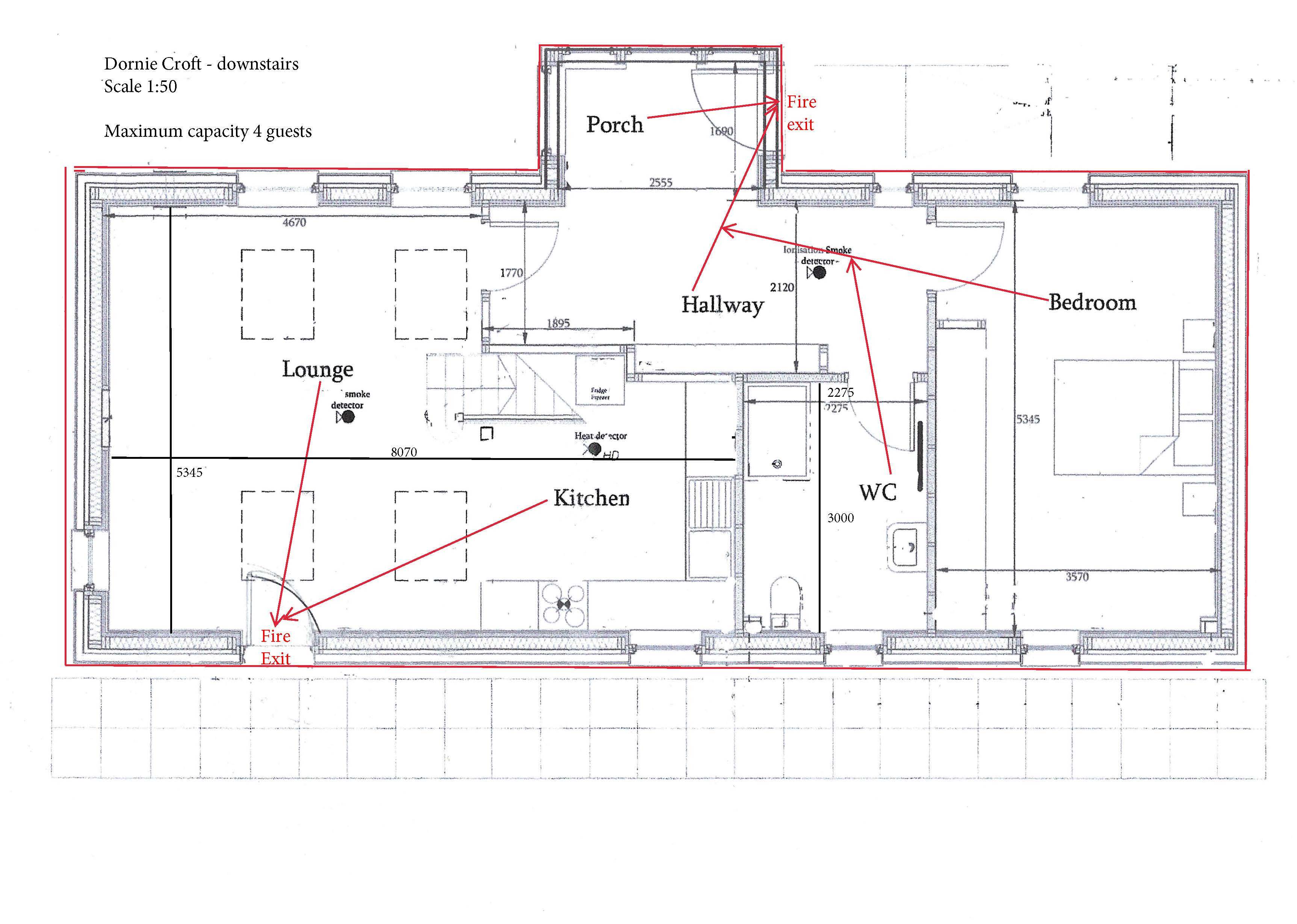
Floor plan of An Dòbhran

Book now

Instant and secure

Ground floor of stunning Scottish seaside cottage - Ground floor plan showing the spacious layout, with all rooms having step-free access.